
OPIS BRAMY:
Przedstawiana linia bram segmentowych o oznaczeniu OGS to wyjątkowe rozwiązanie, łączące funkcje przeciwpożarowe z aspektami przemysłowymi. Oferowane bramy stanowią integralne narzędzia ochrony przeciwpożarowej, przy jednoczesnym zachowaniu praktyczności w kontekście przemysłowym. Dzięki temu rozwiązaniu możliwe jest uniknięcie konieczności implementacji dwóch odrębnych bram, a tym samym minimalizacja miejsca i kosztów operacyjnych.
Wyróżniającą cechą tych konstrukcji jest możliwość wyposażenia w drzwi ewakuacyjne przeciwpożarowe, co stanowi dodatkową warstwę zabezpieczenia. Warto zaznaczyć, że bramy OGS są pionierskimi rozwiązaniami segmentowymi, które oferują taką opcję. Wszystkie bramy są projektowane według indywidualnych specyfikacji i w pełni zgodne ze standardami normy europejskiej EN 16034:2014, co jest potwierdzone stosownym certyfikatem.
KONSTRUKCJA BRAMY:
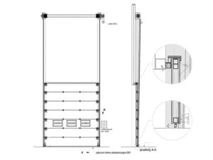
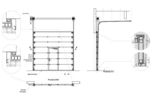
Brama segmentowa typu OGS składa się z paneli poziomych, które są łączone ze sobą. Wysokość paneli może wahać się od 400 do 700 mm. Zewnętrzna powierzchnia paneli bramy jest pokryta ocynkowaną blachą stalową, która jest przymocowana do wewnętrznej izolacji bramy. To nadaje płycie bramy estetyczny i gładki wygląd. Praktyczność bramy jest podkreślana przez niski nadproże o wymiarach 750 – 850 mm, które jest potrzebne do jej instalacji.
Brama może być dostarczona w trzech różnych wariantach otwarcia:
- Standardowym poziomym – wymaga niskiego nadproża o wymiarach 750 – 850 mm.
- Wysokim – stosowanym w przypadku, gdy nadproże jest wyższe.
- Pionowym – stosowanym, gdy brama ma być otwierana pionowo do góry.
Brama jest wyposażona w centralę sterującą oraz napęd przeciwpożarowy, który umożliwia pracę bramy w trybie normalnym oraz automatyczne zamknięcie się bramy po wykryciu alarmu pożarowego.
Typowym sposobem poruszania bramy jest ciągłe naciskanie przycisków na centrali sterującej (góra, stop, dół). Na życzenie klienta, brama może być wyposażona w gumową optyczną listwę bezpieczeństwa na dolnej krawędzi bramy. To zabezpieczenie pozwala na użycie urządzeń zdalnego sterowania bramą (piloty, radary otwarcia, itp.).
Standardowa powierzchnia zewnętrzna bramy OGS jest pokryta wysokiej jakości powłoką ocynkowaną. Klienci mogą również wybrać malowanie bramy na jeden z czterech standardowych kolorów RAL (7035, 9002, 9010, 9006), dowolny kolor z palety RAL lub wykonanie bramy ze stali kwasoodpornej (nierdzewnej).
STEROWANIE BRAMĄ OGS:
Napęd SI z centralą FSTronic DES-FI:
- gwarancja działania na 100 000 cykli
- wymagane zasilanie 1×230 V/20 A
- możliwość zamknięcia bramy z akumulatorów w razie alarmu
- opcja awaryjnego otwarcia bramy ręcznie przez korby lub łańcucha
- możliwość zwiększenia pojemności akumulatorów dla awaryjnego otwarcia bramy bez zewnętrznego źródła zasilania
DODATKOWE WYPOSAŻENIE:
- Drzwi przejściowe o wymiarach 900×2000 mm z progiem 30 mm, wyposażone w samozamykacz nawierzchniowy i zamek klamka-klamka. Możliwe jest również wyposażenie w samozamykacz wbudowany bezpośrednio w płytę drzwi, ewakuacyjny zamek kulowy lub zamontowanie zamka lub sztangi anty panicznej.
- Przeszklenia, ilość uzależniona od szerokości bramy.
- Kratka wentylacyjna.
DODATKOWE WYPOSAŻENIE ELEKTRONICZNE:
- Sygnalizator optyczno-akustyczny – sygnalizacja alarmowego trybu pracy.
- Autonomiczny system detekcji (czujka dymu) – sterowanie zamknięciem bramy w obszarach niewyposażonych w EPS.
- Sygnalizacja świetlna – czerwono-zielona lampa sygnalizująca położenie i ruch bramy.
- Czujnik ruchu podczerwieni lub radarowy – otwieranie bramy opcjonalnie z funkcją rozpoznawania wielkości i kierunku ruchu pojazdów lub osób.
- Pilot zdalnego sterowania – otwieranie i zamykanie bramy.
- Kratka świetlna – zabezpieczenie dolnej części bramy (1500mm) przed przygnieceniem przedmiotów lub osób znajdujących się w świetle kraty.
- Dolna listwa bezpieczeństwa – pneumatyczna lub optyczna, unieruchamia bramę w razie zetknięcia z przeszkodą podczas zamykania.











